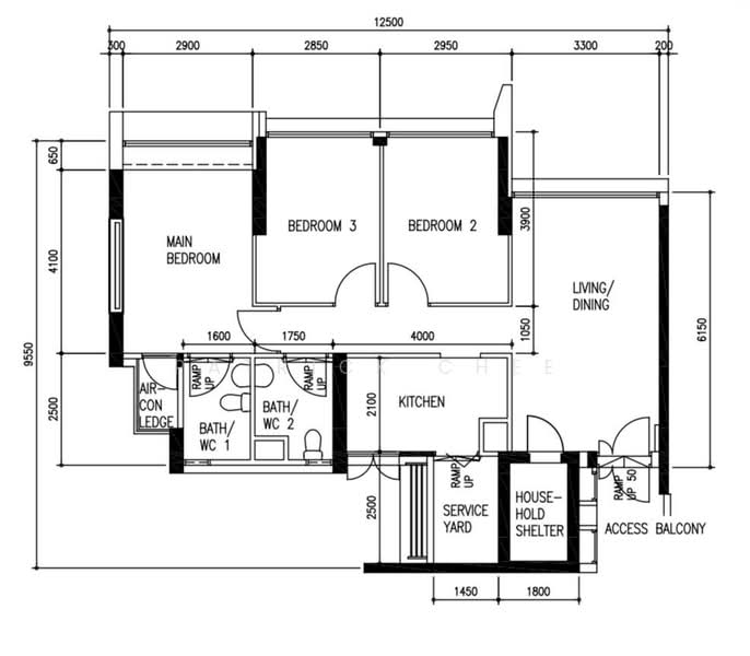
339C Kang Ching Road - 1 Units for Sale
Map View
We’ve shown you all the matches
Almost there!
Refining your recommendations.
This may take a few seconds...
339C Kang Ching Road
339C Kang Ching Road 613339(D22) Boon Lay / Jurong / Tuas
Project details
TypeHDB
Completion year2010
Tenure99-year Leasehold
No. of blocks1
No. of floors20
DeveloperHousing & Development Board (HDB)
Explore PropertyGuru
Properties by ownership








